![]() |
||
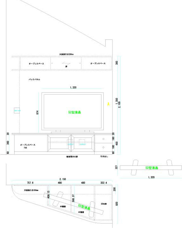
| ◆胡桃のテレビ台 ◆材質:クルミ ◆仕上げ:オイル ◆長さ2150mm奥行き820mm高さ210mm |
||
![]() |
||
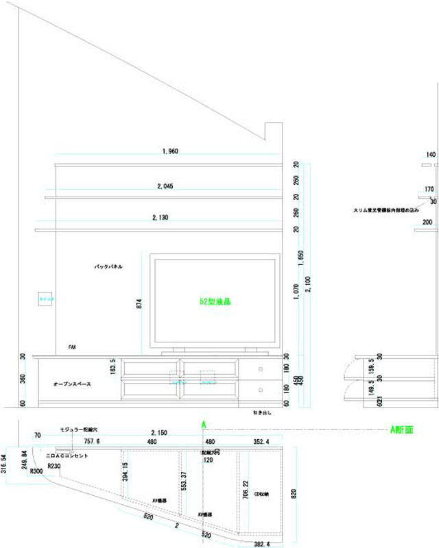
| ◆飾り棚中断にスリット蛍光管をしこみました。屋根の傾斜に間接照明がうまく当たり、計算通りのデザインになりました。 | ||
![]() |
||
![]() |
||
| ◆ステレオアンプ、ブルーレイディスク、パソコン等個別に収納できるスペースは結構使い勝手の良いものとなりました。配線の処理はバックパネルのスペースを使い全く見えない設計にしましたので、見た目も大変綺麗です。 | ||
|
||
![]() |
||
|
||
![]() |
||
|
||
|
||
| ◆作品に関するお問合せはお気軽に!!◆私が責任を持って製作しています。 |







