手作り家具の製作と販売

仏壇 木曽檜

手作り家具 新作
無垢の学習机 木の机 勉強机 学習デスク 木製デスク 木製 学習机 子供 書斎デスク
水屋箪笥 水屋 みずや
和箪笥 欅箪笥 車箪笥 階段箪笥 和服収納 チェスト 桐箪笥 漆
飾り棚 花台 人形ケース 階段箪笥
ダイニングテーブル 一枚板のテーブル 木のテーブル 木製テーブル ワークテーブル ワークデスク
囲炉裏 囲炉裏テーブル
食器棚 カップボード
木の椅子 デザイナーズチェアー ローチェアー ハイチェアー カウンタースツール 玄関椅子
センターテーブル サイドテーブル 円卓 木製
座卓 一枚板の座卓 無垢の座卓 円卓 漆
木のベンチ 漆 木製 木製ソファー
プラズマテレビボード 液晶 テレビボート TV
木製ベッド 疊ベッド ヘッドボード 特注オーダーベッド
下駄箱 下足入れ 造り付け 造作 ビルトイン オーダー
木製玄関ドア 室内建具 室内ドア 親子 無垢
厨子 仏壇 インテリア 特注仏壇 ミニ仏壇
お膳 漆 木製
造り付け オーダーメイド 造り付け 注文家具
木の時計やフレーム
 
お支払・送料
取扱い
返品・交換
保障
 
大事なお客様
ミに仏壇の購入は通販をご利用下さい
祭壇 木曽檜

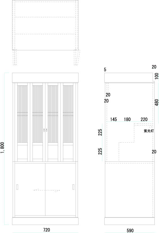
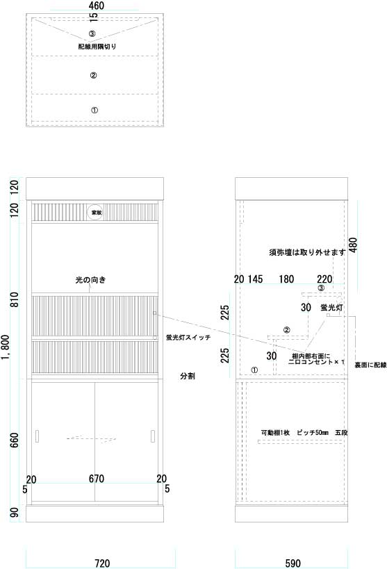
◆材質:本体・木曽檜天然杢突き板 建具、欄間・木曽檜無垢材
◆仕上げ:無塗装◆サイズ:高さ1800×幅720×奥行き590

祭壇 木曽檜 照明
◆須弥壇内部に蛍光管がしこんであります。
注文祭壇 木曽檜

千葉県 お客様からのメール
「お世話になります。
本日祭壇到着設置完了いたしました。色々とご面倒おかけいたしましたが 大変満足しております。ありがとうございました。また 何か用な物ありましたら お願いするかもしれませんがその時は よろしくお願いいたします。ありがとうございました。」

祭壇 木曽檜

【注文仏壇の製作事例】
こちらの作品はネットを見た千葉県のお客様からのご注文です。当初は大まかなイメージとサイズだけのリクエスをFAXで頂きました。弊社でたたき台になる図面を書きPDFファイルにてメールで送りました。それを元にお客様が手書きの図面をFAXして送り返す事を繰り返し、製品になりました。

 
◆家紋もお入れ致します。デザインやサイズも自由設計の注文仏壇です。お気軽にお問い合わせください。